- איך למצוא מלווה בקרבתי
Giu 15, 2023 - מוזיקת ריקודי בטן
Giu 14, 2023
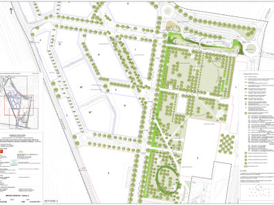
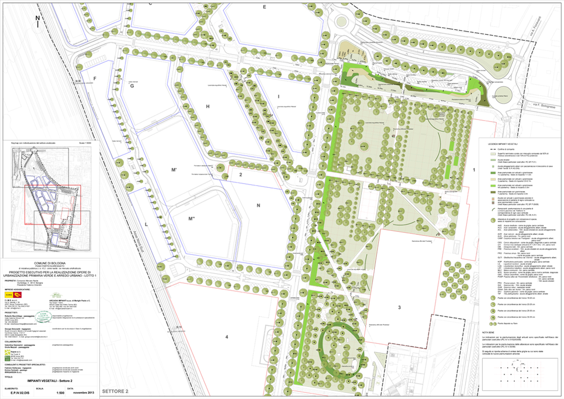
Kepos partecipa alla Biennale del Paesaggio
Apr 14, 2016
Il "Giardino delle Nuvole Bianche" - Auguri da Kepos
Dic 24, 2015
Kepos su GIARDINO ITALIANO 2015
Giu 25, 2015
cosa facciamo
Citazione liberamente tratta da scritti del filosofo Massimo Venturi Ferriolo…bisogna tornare al giardino, alla sua bellezza, utilità e salute: proprio perché siamo nati in un kepos dovremmo poterci vivere. La felicità è un desiderio antico e per natura tendiamo alla ricerca del luogo felice, bello, piacevole, utile, salutare. Il tutto è un’unità inscindibile:…il giardino
.
.
Lavoriamo con passione sul Giardino, il Paesaggio e l’Ambiente, per creare bellezza, armonia e benessere per gli uomini e per la terra. Un luogo sano è anche un luogo bello nel quale è salutare e piacevole vivere
.
Progettiamo per privati, imprese, enti pubblici, giardini, parchi, verde pensile, terrazzi e spazi aperti in genere, comprensivi di tutti gli elementi, le componenti e gli impianti necessari a garantire un alto livello estetico e la massima funzionalità e vivibilità. Sono progetti che nascono per il benessere materiale e spirituale dell’uomo, in piena armonia con il paesaggio circostante e con elevati livelli di sostenibilità e compatibilità ecologica e ambientale.
Progettiamo interventi di valorizzazione e riqualificazione del paesaggio agrario, urbano e industriale, di restauro di giardini, parchi e complessi ambientali storici, di recupero paesaggistico e naturalistico di aree degradate, di ingegneria naturalistica, di valorizzazione e fruizione di paesaggi culturali, naturali e aree protette, di inserimento nel paesaggio di complessi civili, industriali e infrastrutture. Ci occupiamo inoltre di analisi e pianificazione ecologica del paesaggio, del verde e degli spazi urbani.
Progettiamo e coordiniamo studi d’impatto e compatibilità ambientale, studi di prefattibilità e fattibilità ambientale; individuiamo gli elementi di mitigazione e compensazione dell’impatto ambientale di complessi industriali, impianti e infrastrutture; ci occupiamo di piani per la gestione e la difesa della vegetazione in ambito urbano; elaboriamo azioni propedeutiche alla certificazione e gestione ambientale di aree e territori.



Seguici