- איך למצוא מלווה בקרבתי
Giu 15, 2023 - מוזיקת ריקודי בטן
Giu 14, 2023
Kepos partecipa alla Biennale del Paesaggio
Apr 14, 2016
Il "Giardino delle Nuvole Bianche" - Auguri da Kepos
Dic 24, 2015
Kepos su GIARDINO ITALIANO 2015
Giu 25, 2015
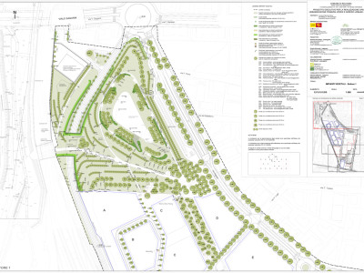
Parco Navile
La Gara d’Appalto cui abbiamo partecipato prevedeva la presentazione di un’offerta tecnica e una economica. Quella tecnica doveva proporre varianti migliorative al progetto definitivo posto a base di gara.
In particolare si richiedeva una proposta, anche in variante al progetto originale, per la realizzazione di una barriera visiva sulla zona di confine con i fabbricati esistenti.
La nostra soluzione ha privilegiato una soluzione in cui la barriera crea il minor impatto visivo nel contesto generale senza alterare il disegno del verde e lo spazio formale pensato in origine. Infatti la barriera visiva è costituita da “archi verdi” che morbidamente si insinuano tra i filari alberati, andando a costituire un filtro che, anziché sottolineare e ribadire la rigidità del confine, crea nuove prospettivei.
Successivamente all’aggiudicazione della gara è stato redatto il Progetto Esecutivo che ha sviluppato tutti gli apsetti costruttivi dell’opera.
Quartiere Navile, Bologna
Ente Banditore: Consorzio Mercato Navile
Per il Progetto Esecutivo C.I.M.S. s.c.r.l. , Arcadia Impianti S.r.l.
6 ha
Paesaggisita Roberto Bacchilega, Valentina Giannerini, Giulia Mazzali
2012 Gara per la progettazione esecutiva e realizzazione di verde e arredo urbano, 2014 Progetto esecutivo









Seguici